✖
Закрыть
-
Мебельная фурнитура
- Ящики и направляющие
- Крепёж и заглушки
- Петли мебельные
- Подпятники
- Замки мебельные
- Зеркалодержатели
- Крючки мебельные
- Навесы кухонные
- Подъемные механизмы
- Полкодержатели
- Ручки мебельные BOYARD
- Трубы
Назад
- Фурнитура Blum
- AVENTOS - подъемные механизмы
- Навесы, стяжки, ограничители
- Системы выдвижения
- Направляющие скрытого монтажа
- Петли Blum
- Шаблоны, станки и приспособления
- Технологии движения
Назад
- Мойки кухонные
- ЛДСП / МДФ
- Столешницы и комплектующие
- Планки для мебельных щитов
- Планки для столешниц
- Пристеночный бортик
- Кромка для столешниц
- Мебельные щиты
- Столешницы
- Лента уплотнительная
- Плинтус-планка h
Назад
- Акриловый камень Grandex
- Внутреннее наполнение для кухни
- Барная организация
- Бутылочницы
- Выдвижные колонны
- Ведра для мусора, системы сортировки и хранения
- Лотки для столовых приборов
- SOTA система-разделитель
- Сушки 2-уровневые в верхнюю базу
- Выдвижные корзины
- Рейлинговая система
- Сушки выкатные для нижней базы
- Волшебный уголок
- Поддон гигиенический
Назад
- Компакт-плита HPL
- Компакт-плита HPL ETERNO 12мм 3050х660
- Компакт-плита HPL ETERNO 4мм
- Компакт-плита HPL ETERNO 12мм 3050х1320
Назад
- Профиль Алюминиевый PREMIAL
- Фасадный алюминиевый профиль
- Классическая система
- Навесная БЕЗрамочная система
- Навесная рамочная система
- Подвесная система
- Распашная система
- Узкопрофильная система Минималист
- Шлегель
- Уплотнитель и пр.
- Упоры
Назад
- Ручка профиль GOLA
- Бытовая техника
- Варочные панели
- Духовые шкафы
- Измельчители
- Кухонные вытяжки
- Мелкая бытовая техника
- Микроволновые печи
- Комплектующие и аксессуары
- Посудомоечные машины
- Сплит системы
- Стиральные машины
- Холодильники
Назад
- Опоры и подстолье
- Комплектующие для шкафов
- Вешало-штанга, крепления
- Корзины сетчатые
- Наполнение для шкафов-купе
- Полки сетчатые
- Система хранения Home Space
- Уголки монтажные
- Cтеллажная система «LINE System»
- Корзины для белья откидные
Назад
- Цокольные системы
- Система Joker
- Электрика
- Выдвижные розетки
- Выключатели
- Блоки питания
- Профиль
- Светодиодная лента
- Галогенные светильники
- Диммеры
Назад
- Универсальная фурнитура
- Мерч и Образцы
- Прочие механизмы
- Мебельная фурнитура
- Фурнитура Blum
- Мойки кухонные
- ЛДСП / МДФ
- Столешницы и комплектующие
- Акриловый камень Grandex
- Внутреннее наполнение для кухни
- Компакт-плита HPL
- Профиль Алюминиевый PREMIAL
- Ручка профиль GOLA
- Бытовая техника
- Опоры и подстолье
- Комплектующие для шкафов
- Цокольные системы
- Система Joker
- Электрика
- Универсальная фурнитура
- Мерч и Образцы
- Прочие механизмы
- Матрасы ортопедические (под заказ)
- Каркасная мебель Loft
КАТАЛОГ ТОВАРОВМебельная фурнитура Фурнитура Blum Мойки кухонные ЛДСП / МДФ Столешницы и комплектующие Акриловый камень Grandex Внутреннее наполнение для кухни Компакт-плита HPL Профиль Алюминиевый PREMIAL Ручка профиль GOLA Бытовая техника Опоры и подстолье Комплектующие для шкафов Цокольные системы Система Joker Электрика Универсальная фурнитура Мерч и Образцы Прочие механизмы Матрасы ортопедические (под заказ) Каркасная мебель Loft0- Мебельная фурнитура
- Фурнитура Blum
- Мойки кухонные
- ЛДСП / МДФ
- Столешницы и комплектующие
- Акриловый камень Grandex
- Внутреннее наполнение для кухни
- Компакт-плита HPL
- Профиль Алюминиевый PREMIAL
- Ручка профиль GOLA
- Бытовая техника
- Опоры и подстолье
- Комплектующие для шкафов
- Цокольные системы
- Система Joker
- Электрика
- Универсальная фурнитура
- Мерч и Образцы
- Прочие механизмы
- Матрасы ортопедические (под заказ)
- Каркасная мебель Loft
КАТАЛОГ ТОВАРОВМебельная фурнитура Фурнитура Blum Мойки кухонные ЛДСП / МДФ Столешницы и комплектующие Акриловый камень Grandex Внутреннее наполнение для кухни Компакт-плита HPL Профиль Алюминиевый PREMIAL Ручка профиль GOLA Бытовая техника Опоры и подстолье Комплектующие для шкафов Цокольные системы Система Joker Электрика Универсальная фурнитура Мерч и Образцы Прочие механизмы Матрасы ортопедические (под заказ) Каркасная мебель Loft- Мебельная фурнитура
- Фурнитура Blum
- Мойки кухонные
- ЛДСП / МДФ
- Столешницы и комплектующие
- Акриловый камень Grandex
- Внутреннее наполнение для кухни
- Компакт-плита HPL
- Профиль Алюминиевый PREMIAL
- Ручка профиль GOLA
- Бытовая техника
- Опоры и подстолье
- Комплектующие для шкафов
- Цокольные системы
- Система Joker
- Электрика
- Универсальная фурнитура
- Мерч и Образцы
- Прочие механизмы
- Матрасы ортопедические (под заказ)
- Каркасная мебель Loft
КАТАЛОГ ТОВАРОВХабаровскМебельная фурнитура Фурнитура Blum Мойки кухонные ЛДСП / МДФ Столешницы и комплектующие Акриловый камень Grandex Внутреннее наполнение для кухни Компакт-плита HPL Профиль Алюминиевый PREMIAL Ручка профиль GOLA Бытовая техника Опоры и подстолье Комплектующие для шкафов Цокольные системы Система Joker Электрика Универсальная фурнитура Мерч и Образцы Прочие механизмы Матрасы ортопедические (под заказ) Каркасная мебель LoftВыберите ближайший к Вам склад
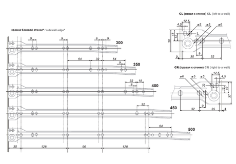
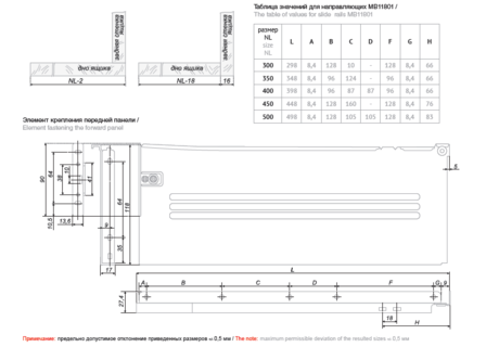
Мебельная фурнитура Фурнитура Blum Мойки кухонные ЛДСП / МДФ Столешницы и комплектующие Акриловый камень Grandex Внутреннее наполнение для кухни Компакт-плита HPL Профиль Алюминиевый PREMIAL Ручка профиль GOLA Бытовая техника Опоры и подстолье Комплектующие для шкафов Цокольные системы Система Joker Электрика Универсальная фурнитура Мерч и Образцы Прочие механизмы Матрасы ортопедические (под заказ) Каркасная мебель Loft0Главная страница>Распродажа>Мебельная фурнитура>Ящики и направляющие>Ящики металлобоксы>металлобокс MB11801W/300 (10) ВЫВОДметаллобокс MB11801W/300 (10) ВЫВОДХарактеристикиОписаниеАртикул 25795Артикул поставщика MB11801W/300Под заказ НетБазовая единица штВысота (мм) 118 ммДлина (мм) 300 ммАмортизатор: Нет
Монтажная длина: 300 мм
Тип выдвижения: Неполное
Тип конструкции: Роликовые с металлическими боковинами
Высота стенки: 118 мм
Цвет: Белый
Несущая способность (на пару): до 20 кг
Минимальная высота проёма: 142 мм
Сегмент: Эконом
Стандарт: Базовый
Кол-во в упаковке: 10Код товара:
25795 В наличии
Способы оплаты:
Оплата в офисе (наличными, безнал.) Банковский перевод для ИП, ООО Онлайн-оплата (Visa, MasterCard, Мир)
Способы доставки:
По городу: 1000 руб.
Самовывоз: ул.Краснореченская, 111Г
КалькуляторыПродажа мебельной фурнитуры
и комплектующих в Хабаровске
ИП Спицын А.А
ИНН 280113811158
ОГРНИП 305280129000038
Р/С 40802810903000002353
БИК 040813608
ДАЛЬНЕВОСТОЧНЫЙ БАНК ПАО СБЕРБАНКВарианты оплаты

Оставляя заявку на сайте mf-group.ru,
Вы даете свое согласие на обработку
персональных данных и соглашаетесь
с политикой конфидециальности.Адрес680000, Хабаровский край,
г.Хабаровск, ул.Краснореченская, 111Г
Режим работыПн. – Пт.: с 9:00 до 18:00
Сб.: с 9:00 до 16:00 Вс.: выходнойКонтактыОтдел продаж:
+7 (4212) 38-18-77
+7 (914) 544-32-34
+7 (914) 190-13-23
khv@mf-group.ru
Whatsapp:
+7 (914) 544-32-34 Продажа мебельной фурнитуры
и комплектующих в Хабаровске
ИП Спицын А.А
ИНН 280113811158
ОГРНИП 305280129000038
Р/С 40802810903000002353
БИК 040813608
ДАЛЬНЕВОСТОЧНЫЙ БАНК ПАО СБЕРБАНКВарианты оплаты

Оставляя заявку на сайте mf-group.ru,
Вы даете свое согласие на обработку
персональных данных и соглашаетесь
с политикой конфидециальности.Адрес680000, Хабаровский край,
г.Хабаровск, ул.Краснореченская, 111Г
Режим работыПн – Пт: с 9:00 до 18:00
Сб: с 9:00 до 16:00 Вс: выходнойКонтактыОтдел продаж:
+7 (4212) 38-18-77
+7 (914) 544-32-34
+7 (914) 190-13-23
khv@mf-group.ru
Whatsapp:
+7 (914) 544-32-34
Продажа мебельной фурнитуры
и комплектующих в Хабаровске
Адрес680000, Хабаровский край,
г.Хабаровск, ул.Краснореченская, 111Г
Режим работыПн – Пт
с 9:00 до 18:00
Сб
с 9:00 до 16:00
Вс
выходнойКонтактыОтдел продаж:
+7 (4212) 38-18-77
+7 (914) 544-32-34
+7 (914) 190-13-23
khv@mf-group.ru
Whatsapp:
+7 (914) 544-32-34 Варианты оплаты

Оставляя заявку на сайте mf-group.ru,
Вы даете свое согласие на обработку
персональных данных и соглашаетесь
с политикой конфидециальности.ИП Спицын А.А
ИНН 280113811158
ОГРНИП 305280129000038
Р/С 40802810903000002353
БИК 040813608
ДАЛЬНЕВОСТОЧНЫЙ БАНК ПАО СБЕРБАНК© 2018-2026 Интернет-магазин МФ-Групп. Все права защищены
